площадью 735,00 м2, по цене 39500000 по адресу Рубежная - 4

Цена 39 500 000 р.
Адрес Рубежная, 4
Площадь помещения 735 м2
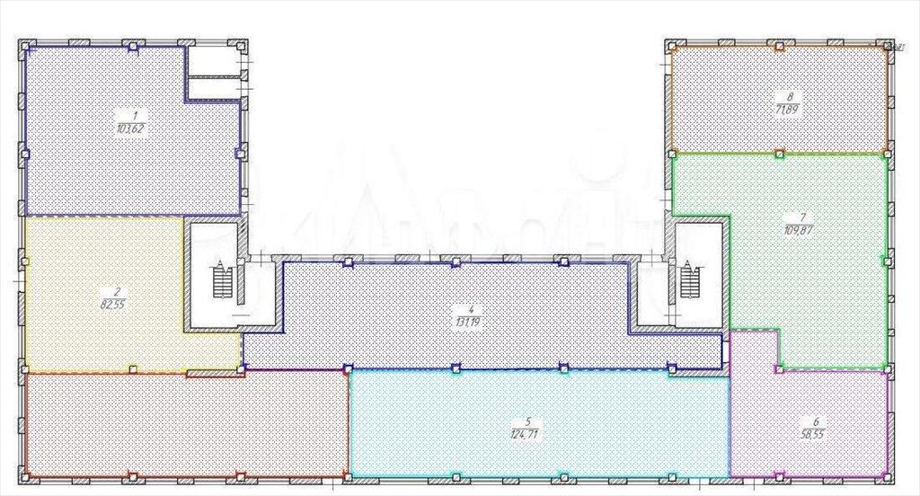
Помещение свободного назначения по ул. Рубежная. Общей площадью: 735 кв.м. Рассрочка! ! обсудим любые формы расчета! в продаже помещение свободного назначения, в развивающимся микрорайоне города, в 20 минут от площади маркса. 2 минуты от поселка васхнил. 5 минут от жилмассива северо-чемской. развитая транспортная развязка. в пешей доступности автобусные остановки. большая плотность населения. помещение в новом доме имеет несколько независимых входных групп, оснащено всеми инженерными коммуникациями- автономная система отопления, электроснабжение, горячее и холодное водоснабжение, водоотведение, высота потолков 3 м. выполнена чистовая отделка помещения- стяжка пола, выровнены стены, установлены откосы на окнах. благодаря отсутствию несущих стен, огромному количеству точек подключения инженерных коммуникаций и входов позволит выполнить абсолютно любое зонирование и перепланировки. в помещение своя вентиляция, не соприкасающаяся с жилой зоной дома и отдельное водоотведение. электрическая мощность 30 квт с возможностью увеличения. огромный плюс дома, это своя газовая котельная. никаких перебоев с отоплением и горячей водой не будет. на территории здания располагается закрытая парковка, так же есть возможность организовать отдельный свободный вход для всех жителей микрорайона и собственную парковку. помещение идеально подходит под размещение офисов, медицинского или сервисного центра, пункта выдачи, так же для организации арендного бизнеса. здание обслуживается квалифицированными специалистами управляющей компании. возможна коммерческая ипотека во всех банках. обменяем на квартиру! ! JC000080050722.
Объявление № 23219888
Дата подачи:
5 сентября 2025 г. 15:04
Дата обновления:
5 сентября 2025 г. 0:00
Просмотров 17 Хотите продать быстрее?

Продавец
Алексей Николаевич
Показать номер телефона
Пожаловаться
Комментарии:
Добавить